この物件の情報は「掲載日」時点の内容になります。
お探しの物件の最新の状況は以下ボタンよりお問い合わせお願いします。
お問い合わせ不動産収益
投資商品には色々とありますが
不動産収益って他とは一線を画しますよね
何が違うのかって?
一つ大きな違いがしっかりあります
それはハードルが高い事!!
何のハードルでしょうか?
やはり金銭的ハードルですね
一般的に出回っている投資商品って
ちょっとした小遣いに少し足したくらいお金で
とりあえず始める事は出来ますが
不動産投資に関しては多額の金銭が必要になります
ちょっと生活費を切り詰めて...
ちょっと多めに貯金して...
とか、そんなレベルの話ではありませんよね
銀行から融資?
それは借りられるだけの信用と実績
そして手元の資産や担保があるから出来ること
一般の会社員さんがお金を借りて不動産投資
正直、不可能に近いのが現状です
(現時点の銀行動向での話です....
時代や規制緩和等により変動します)
とにかく収益用として1件目の購入が一番難しい
それが不動産投資となります
逆に言えば不動産投資できている時点で
人生でかなりの波に乗れていると言えますね
(捉え方により勝ち組とも言えます)
話は少々逸れましたが何が言いたいかと言うと
最初のハードルを越えられた人は
あとは結構手間要らず、時間要らず
最初が一番の難関だったりするのが不動産投資です
一つ言えば不動産は
今日買った物が突然無価値になることはありません
勿論、時代やタイミングにより上昇下降するのは当然ですが
急激な時代変化でも精々年間10〜20%程の変動
しかも経済に先んじて動く物でなく
経済事情に後から付いてくるので
相場や市場が他の投資物件に比べて
非常に読みやすく、わかりやすい
そんな投資商品他にありますでしょうか?
実は非常に安定した投資先になります
「お金のある所にお金は集まる」
とはよく言った物で
お金がある人は不動産を購入して
安定した収入を受け続けている
と言うのが世の中の現状です
何の話でしたっけ?
そうそう、今回の物件は人気の中央区
安定した進化と経済事情が続く「北浜」の
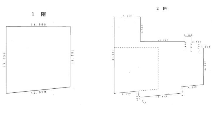
区分所有事務所1.2階部分
専有面積640.42㎡とかなり大規模で
その賃料はなんと
月額:1,359,667円
想定年収:16,316,004円
他ランニングコストは掛かるものの
所有しているだけで年間1,600万円の収入が得られます
安定した資産運用をご検討の方
ここに安定した不動産投資物件がございます
ーーーーーーーーーーーーーーーーーーーーー
リノベーション収益/提案が得意な不動産会社
不動産の管理・運用・総合コンサルティング
お気軽にご相談下さい。

部屋ID:R010381
販売希望価格:3億4,000万円(税込)
最寄駅1:大阪メトロ谷町線「天満橋」駅まで 徒歩7分
最寄駅2:京阪本線「天満橋」駅まで 徒歩7分
最寄駅3:大阪メトロ堺筋線「北浜」駅まで 徒歩7分
現状:賃貸中
所在地: 大阪府大阪市中央区東高麗橋丁目
物件種別:区分所有
物件構造:鉄骨鉄筋コンクリート
物件階層:15階建
完成年月:平成11年7月(築27年)
取引形態:仲介
EV:あり
用途:収益
建ぺい率:
容積率:
掲載日時:2026-04-04
所在階数:1階
総戸数:62戸
方角:東南角部屋
管理費:46,550円
修繕積立金:69,400円
その他費用:月額賃料1,359,667円にて賃貸中
現状年収:16,316,004円
利回り:4.79%
満室年収:16,316,004円