この物件の情報は「掲載日」時点の内容になります。
お探しの物件の最新の状況は以下ボタンよりお問い合わせお願いします。
お問い合わせビジネスエリアってある程度、商圏が決まってますよね
大阪市内で言えば梅田・淀屋橋・本町・心斎橋
少し重点を落として南森町・西天満・肥後橋
といった所でしょうか?
確かにビジネスの中心地であり需要が多いエリアです
ただ、時々思うんです。
ビジネス中心地に企業が集まるのは当然ですが
中小・零細含めてオフィス(会社)って至る所にありますよね
勿論、商売を始めるにあたって
それぞれ色んな理由・環境・価格など、総合判断により
今の場所に至ったのでしょう
問題はビジネス中心地を外れたら
賃貸officeしかない現実
将来的な移転や万が一の徹底を視野に入れたら
賃貸での盛業はリスクヘッジになります
だけど、ビジネスが安定して
長期的に商売をしている方(老舗) になってきた時、
やはり自社で保有する事も検討したい所です
そうなった際、結構悩んでしまいます
中心部で購入して移転するのもありですが
ハッキリ言って価格が上がります
妥協して広さを縮小する事になれば
それはもう本末転倒とも言えます
大阪市 西区 新町3丁目
このエリアでも同じ事が言えるのではないでしょうか?
心斎橋にアクセスしやすく
堀江エリア周辺 住居としては人気のエリアですが
区分所有のオフィスは皆無に近し
賃貸オフィスが主流のエリアです
そんな立地に建つ貴重な区分所有office
それが今回の物件
☆西長堀ビジネスゾーン☆
1989年に建築された建物
まさに日本は大バブル景気時代
時代の名残を随所に感じさせる
デザインの建物となっております
勿論、新耐震基準の建物です
そして室内はデザイン力の高いリノベーション済
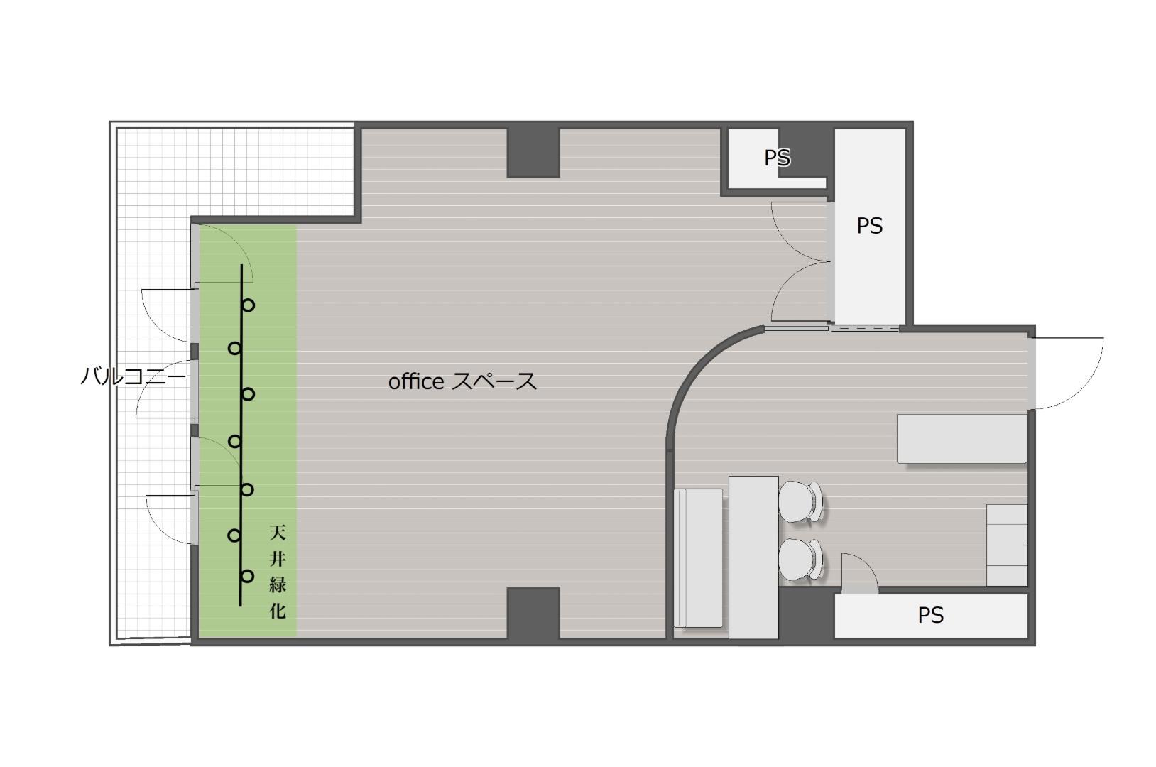
来客対応や軽い商談・打ち合わせの出来る
「briefingスペース」
事務作業に適し広めに確保した
「officeスペース」
そして全体のアクセントと癒しを与える
「天井緑化」
こだわりの内装に仕上がっております
心斎橋の隣町「落ち着いた都心部」
毎日通う職場だからこそ
落ち着いた、集中できる立地で
効率よくビジネスに邁進してみませんか?
ーーーーーーーーーーーーーーーーーーーー
リノベーション収益/提案が得意な不動産会社
不動産の管理・運用・総合コンサルティング
お気軽にご相談下さい。

部屋ID:R009977
販売希望価格:4,530万円(税込)
最寄駅1:大阪メトロ長堀鶴見緑地線「西長堀」駅まで 徒歩3分
最寄駅2:大阪メトロ千日前線「西長堀」駅まで 徒歩3分
現状:賃貸中
所在地: 大阪府大阪市西区新町3丁目8-18
物件種別:区分所有
物件構造:鉄骨鉄筋コンクリート
物件階層:9階建地下1階付き
完成年月:平成元年7月(築36年)
取引形態:仲介
EV:あり
用途:事務所・収益
建ぺい率:
容積率:
掲載日時:2025-10-25
所在階数:6階
総戸数:19戸
方角:北
管理費:23,390円
修繕積立金:9,720円
その他費用:電気基本料11,510円
現状年収:ー円
利回り:5.82%
満室年収:2,640,000円