この物件の情報は「掲載日」時点の内容になります。
お探しの物件の最新の状況は以下ボタンよりお問い合わせお願いします。
お問い合わせ
部屋ID:R009667
販売希望価格:1億9,800万円(税込)
最寄駅1:阪急神戸本線「中津」駅まで 徒歩8分
最寄駅2:阪急宝塚本線「中津」駅まで 徒歩8分
現状:空室
所在地: 大阪府大阪市北区中津6丁目7-22
物件種別:区分所有
物件構造:鉄筋コンクリート
物件階層:12階建
完成年月:平成26年2月(築12年)
取引形態:仲介
EV:あり
用途:収益
建ぺい率:
容積率:
掲載日時:2026-01-08
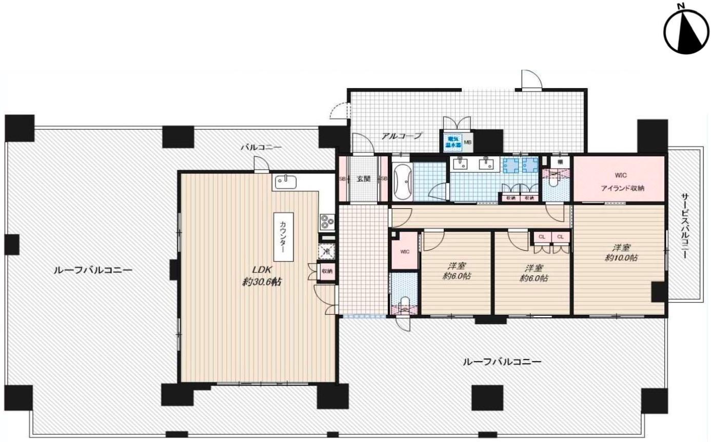
所在階数:12階
総戸数:戸
方角:四方角部屋
管理費:14,610円
修繕積立金:36,860円
その他費用:ー
現状年収:ー円
利回り:%
満室年収:ー円